"20260117211901:H:0" "20260117211901:H:0" "20260117211901:H:0"

遠州鉄道 新浜松駅 5階建 新築

この物件にお問い合わせ
お問い合わせの内容を選択してください
053-416-2888
不動産本舗(株)MJC
営業時間:9時~19時
定休日:水曜日
お電話の際は、SUUMOを見たとお伝えいただくとスムーズです。

部屋の特徴・設備

  • バストイレ別、バルコニー、エアコン、ガスコンロ対応、クロゼット、シャワー付洗面台、TVインターホン、浴室乾燥機、オートロック、シューズボックス、システムキッチン、南向き、角住戸、温水洗浄便座、エレベーター、洗面所独立、洗面化粧台、駐輪場、宅配ボックス、BS・CS、敷金不要、防犯カメラ、全居室洋室、保証人不要、24時間緊急通報システム、2沿線利用可、CS、駅まで平坦、ネット使用料不要、全室南向き、複層ガラス、平坦地、未入居、始発駅、3駅以上利用可、駅前、駅徒歩10分以内、敷地内ごみ置き場、全居室6畳以上、全居室8畳以上、都市ガス、南面バルコニー、BS、礼金1ヶ月、IT重説 対応物件

物件概要

情報の見方

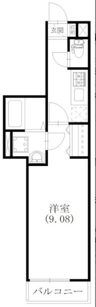
間取り詳細 洋9.08 K 構造 鉄筋コン
階建 1階/5階建 築年月 2026年3月
エネルギー
消費性能
- 断熱性能 -
目安光熱費
  • -
損保 駐車場 敷地内13200円
入居 '26年3月上旬 取引態様 仲介
条件 - 取り扱い店舗
物件コード
13604521
SUUMO
物件コード
100483306196 総戸数 30戸
情報更新日 2026/01/16 次回更新予定日 2026/01/31
契約期間
  • 普通借家 2年
仲介手数料
  • 1.1ヶ月
保証会社
  • 保証会社利用必 初回契約時:50%、更新時:10,000円、月額:1.5%、2年ごとに更新
ほか初期費用
  • 合計6.7万円(内訳:自治会入会費 2000円 ハウスクリーニング 65000円税込)
ほか諸費用
  • 町内会費 600円/月額 更新事務手数料 11000円
備考
  • 遠州鉄道 遠州病院駅徒歩16分/新築 未入居 JR沿線 浜松駅徒歩圏内 遠鉄沿線 オートロック 防犯カメラ 駐車場:要問合せ 駐輪場 システムキッチン 2口コンロ 都市ガス 浴室乾燥 洗濯乾燥機 インターネット無料 RC構造 シャンプードレッサー BS CS 南向き 南面バルコニー ガス給湯 複層ガラス エアコン ※現況優先 保証人不要 要保証会社契約 ※内装写真は別部屋の参考写真です

情報掲載元物件はこちら
この物件にお問い合わせ
お問い合わせの内容を選択してください
不動産本舗(株)MJC
営業時間:9時~19時/定休日:水曜日

この物件を取り扱う店舗

不動産本舗(株)MJC 取引態様:仲介
免許番号: 静岡県知事(4)第13116号 / (公社)静岡県宅地建物取引業協会会員 /  東海不動産公正取引協議会加盟
  • 駅まで車送迎
  • 法人契約取扱
  • 社宅・寮対応
  • 駐車場あり
  • 保証人不要相談可
会社としての歴史は浅いのですが賃貸業界経験の長いスタッフが、豊富な物件知識でお部屋探しのお手伝いをさせて頂きます
静岡県浜松市中央区幸2-1-5-1階
9時~19時
定休日: 水曜日
遠鉄バス/城北工高バス停 歩1分

053-416-2888
  • 部屋情報
  • 地図・周辺環境
  • エリアの口コミ

【掲載物件情報について】

・SUUMOは「自ら居住するための住宅」をお探しの方に向けたポータルサイトです。契約者以外の方が使用する(例:第三者に宿泊させる等)ことを目的としたお問合せはご遠慮ください


・SUUMOではユーザーの皆様に最も信頼されるサイトを目指して、物件情報の精度向上に努めております。SUUMOに掲載されている物件情報について「事実と異なる点や誤解を招く表現がある」「成約済の物件が掲載されている」などにお気づきになりましたら、以下のページからご連絡ください

その他の情報

不動産本舗(株)MJCのその他取り扱い物件

全物件を一覧表示する

最寄駅から探す

最寄駅の沿線から探す

関連エリアから不動産情報を探す

ページトップへ戻る

お気に入りに追加しました。

운영자와 1:1 채팅